Wohnen am Wasser – Finnische Blockhäuser in idyllischer Parkanlage
03116 Drebkau, Bungalow zum Kauf
Kontaktdaten
-
NameHerr Dipl.-Immobilienwirt Ben Görner
-
AdresseScharfenbergerstr. 43
01139 Dresden -
E-Mail Zentrale
-
E-Mail Direkt
-
Tel. Zentrale
-
Mobil
Objektdaten
-
Objekt IDdrebkau7
-
ObjekttypenBungalow, Ferienimmobilie, Haus
-
Adresse03116 Drebkau
-
Etagen im Haus2
-
Wohnfläche ca.70 m²
-
Grundstück ca.650 m²
-
Zimmer3,5
-
Schlafzimmer2
-
Badezimmer1
-
Balkone1
-
Terrassen1
-
HeizungsartZentralheizung
-
Wesentlicher EnergieträgerGas
-
Baujahr1997
-
Zustandgepflegt
-
AusstattungStandard
-
ProvisionspflichtigJa
-
Käuferprovision7,14% inkl. MwSt.
Mit Annahme des Exposès erklärt sich der Käufer mit der Zahlung der Maklercourtage einverstanden, auch dann wenn der Makler für beide Parteien vermittelnd tätig wird. -
Kaufpreis155.000 EUR
Ausstattung / Merkmale
- Als Ferienimmobilie geeignet
- Balkon
- Balkon/Terrasse Süd
- Dusche
- Gartennutzung
- Gewerblich nutzbar
- Kamin
- Kein Keller
- Tageslichtbad
- Terrasse
Objektbeschreibung
Beschreibung
ENERGIEAUSWEIS
Der Energieausweis liegt seitens des Anbieters noch nicht vor.
---------------
In traumhafter Lage am Teich präsentieren sich zwei außergewöhnliche Holzhäuser im original finnischen Baustil. Die Gebäude erstrecken sich jeweils über zwei Etagen und bieten eine Wohnfläche von ca. 70 m² pro Haus. Ob als dauerhafter Wohnsitz oder exklusiver Rückzugsort – diese Immobilie verbindet naturnahes Leben mit wohnlichem Komfort.
Ursprünglich zu Freizeitzwecken genutzt, befindet sich die Umnutzung aktuell in Umsetzung, sodass künftig eine dauerhafte Wohnnutzung möglich ist. Damit eröffnet sich eine seltene Gelegenheit, echtes „Leben am See“ ganzjährig zu genießen.
Das großzügige Grundstück ist parkähnlich angelegt und bildet eine grüne Oase der Ruhe. Herzstück ist ein wunderschöner Teich, dessen Nutzungsmöglichkeiten von naturnahem Biotop bis hin zum Badebereich reichen – ein echtes Highlight für Natur- und Wasserliebhaber.
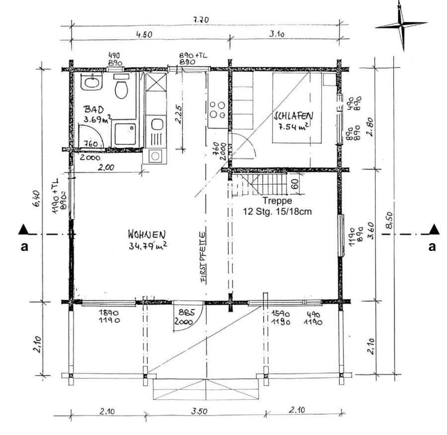
Die Raumaufteilung der Häuser ist durchdacht und funktional.
Beide Häuser befinden sich in einem sehr gepflegten Zustand und sind sofort nutzbar. Aufwendige Sanierungsmaßnahmen sind nicht erforderlich; lediglich die Terrassen benötigen eine kleinere Überarbeitung. Die hochwertige Holzbauweise verleiht den Häusern einen besonderen Charme und sorgt für eine warme, behagliche Wohnatmosphäre.
Beheizt werden die Gebäude über separate Gasheizungen. Alle Medien liegen an bzw. können entsprechend der künftigen Nutzung getrennt geführt werden. Eine aufwendige Dämmung sorgt für zeitgemäßen Wohnkomfort. Das vollständig eingefriedete Grundstück ist über ein großes Tor zugänglich und bietet damit Privatsphäre und Schutz vor unbefugtem Zutritt.
Ein seltenes Immobilienangebot für alle, die Natur, Ruhe und individuelles Wohnen am Wasser schätzen.
Der angegebene Kaufpreis sowie die Grundstücksgröße verstehen sich jeweils pro Haus. Der genaue Verlauf sowie die Abgrenzung des Grundstücks werden in Absprache mit dem Käufer festgelegt und im Zuge einer Vermessung verbindlich definiert.
Darüber hinaus stehen zwei weitere, unmittelbar angrenzende Ferienhäuser ebenfalls zum Verkauf. Somit bietet sich optional die Möglichkeit, das Ensemble zu erweitern – ideal für Mehrgenerationenwohnen, Kapitalanleger oder eine kombinierte Wohn- und Nutzungslösung.
Sonstige Informationen
Ein Energieausweis ist bei diesem Objekt nicht vorgeschrieben.
Lage
Leuthen ist ein Ortsteil der Stadt Drebkau im Landkreis Spree Neiße und liegt in der Niederlausitz, etwa 9 km südlich von Cottbus. Die Umgebung ist überwiegend landwirtschaftlich genutzt und wirkt offen und weitläufig.
• Der Ort befindet sich am Rand einer ausgedehnten Niederung, die dem Lausitzer Grenzwall vorgelagert ist, und bietet damit ein landschaftlich reizvolles, naturnahes Umfeld.
• Die Siedlungsstruktur ist dörflich mit überwiegend Wohnbebauung, Grundschule („Leuthen Schule“) und Kindertagesstätte; die Lage gilt als ruhig mit geringer Verkehrsbelastung.
Verkehr und Anbindung
• Leuthen ist über die nahe Bundesstraße 169 und die Autobahn A15 gut an Cottbus und die Region angebunden; Cottbus ist mit dem Pkw in unter 15 Minuten erreichbar.
• Zusätzlich besteht ein Haltepunkt an der Bahnstrecke Dresden–Senftenberg–Cottbus sowie eine Regionalbuslinie (u. a. Linie 23 Cottbus – Leuthen – Drebkau – Neupetershain – Welzow), was die Mikrolage für Pendler attraktiv macht.
Versorgung und Infrastruktur
• Die Nahversorgung erfolgt über Drebkau (ca. 2–4 km) mit Supermärkten, Bäckereien und Grundversorgung.
• Für umfassende Einkaufsmöglichkeiten, Fachärzte und Klinikum steht Cottbus als regionales Versorgungszentrum in kurzer Distanz zur Verfügung.
Naherholung im direkten Umfeld
• Das Umfeld von Drebkau und Leuthen ist durch Kiefernwälder, landwirtschaftliche Flächen und einzelne Laubwald und Parkbereiche geprägt und bietet zahlreiche Möglichkeiten für Spaziergänge und Radtouren
• In Drebkau selbst lädt der Schlosspark mit Teich und Grünanlagen als beliebte Naherholungsstätte ein; zudem sorgen die kleinteilige Altstadtstruktur und die Umgebung für ein „liebensvoll heimeliges“ Ortsbild.
Überregionale Erholungsziele
• In kurzer Fahrdistanz liegen mehrere Seen und Erholungsräume der Lausitz, unter anderem der Gräbendorfer See als ausgewiesenes Naherholungsgebiet mit Rad und Wanderwegen.
• Das Biosphärenreservat Spreewald mit Orten wie Burg (Spreewald) und Lübbenau ist in etwa 20–26 km erreichbar und bietet traditionelle Kahnfahrten, Wasserwege und vielfältige Freizeitangebote in einer einzigartigen Auenlandschaft.
Die dargestellte Position der Immobilie ist nur eine ungefähre Angabe.















